| DN | DN300 |
|---|---|
| Dy mm | DY355 |
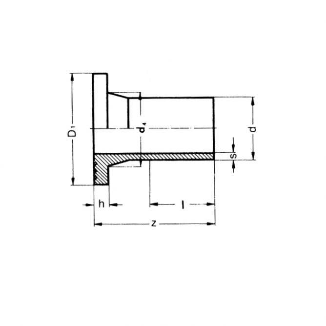
PE KRAGE 300/355MM SDR11 PN10 PE100 L=300
Med integrert stålflens
NRF/Artikkelnummer: 24333
PE krage utviklet for applikasjoner med høye belastninger, der man ønsker kraftig og langvarig skjøt mellom PE-rør og flenssystemer. Kragen har spesialutforming for å sikre best mulig styrke og tetthet.
Kontakt oss
Har spørsmål eller behov for hjelp så kontakt oss gjerne.
-
67 80 62 00




